Trilocale in vendita

Roma, Via Clemente IX - Pineta Sacchetti
€ 289.000
3 locali 3 locali
75 Mq 75 Mq
1 bagno 1 bagno

Trilocale in vendita

Roma, Via Clemente IX - Pineta Sacchetti

Descrizione annuncio

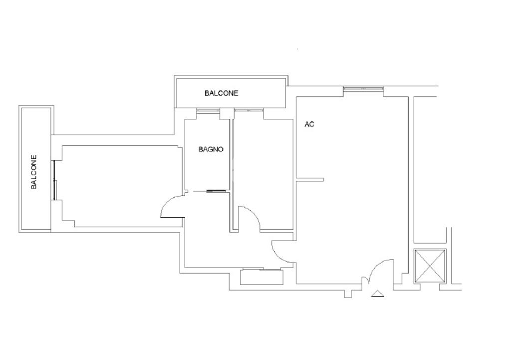
Nel cuore di Pineta Sacchetti, a pochi passi dall'Ospedale Cristo Re, è disponibile un trilocale in vendita situato al secondo piano di un edificio dotato di ascensore.

Molto luminoso, grazie alla presenza di due balconi che permettono un'abbondante illuminazione naturale, l'appartamento, sviluppa una superfcie commerciale di circa 75 mq , l'ottima distribuzione degli spazi interni, garantisce comfort e funzionalità. La zona giorno è composta da un soggiorno con cucina a vista, mentre la zona notte comprende due camere da letto accoglienti. Il bagno è ben rifinito e l'immobile è in ottimo stato interno, pronto per essere abitato.

L'aria condizionata assicura un ambiente confortevole in ogni stagione. Costruito nel 1967, l'edificio si presenta in buone condizioni, offrendo un contesto residenziale tranquillo e ben collegato con il resto della città. Una soluzione ideale per chi cerca comodità e praticità a Roma.

Se stai vendendo il tuo immobile o vorresti avere una valutazione completamente gratuita contattaci 06.79.78.69.40, mandaci una mail RM1 o passa a trovarci in Via calisto II nr 18.

Ogni agenzia ha un proprio titolare ed è autonoma - Le presenti informazioni non costituiscono elemento contrattuale.

Mostra tutto

Nelle vicinanze

Trasporto pubblico Trasporto pubblico
Battistini
Battistini
1,0 Km
Cornelia
Cornelia
1,7 Km
stazione di Roma Balduina
stazione di Roma Balduina
1,5 Km
Gemelli
Gemelli
1,6 Km
Forte Braschi/Cardinal Garampi
Forte Braschi/Cardinal Garampi
100 m
Ricariche auto elettriche Ricariche auto elettriche
Eneldrive Battistini
1,0 Km
The Church Palace
2,1 Km
Axpo - Stazio
2,2 Km
Rome Cavalieri, A Waldorf Astoria Resort
2,2 Km
Roma Gregorio VII | EnelX
2,7 Km
Scuole Scuole
Scuole
160 m
Liceo Scientifico Statale Evangelista Torricelli
250 m
Istituto Professionale Stendhal
610 m
ITI Albert Einstein
1,1 Km
IIS Einstein-Bachelet
1,6 Km
Farmacia Farmacia
Farmacia
390 m
Farmacia Crescimanno
450 m
Farmacia la fenicia
890 m
Farmacia Colapinto
1,0 Km
Pulker Farma
1,3 Km
Ospedali Ospedali
Pronto Soccorso Ospedale "Cristo Re"
400 m
Ospedale Cristo Re
400 m
Ospedali
1,6 Km
Complesso Integrato Columbus
1,6 Km
Clinica Villa Benedetta
1,6 Km
Supermercati Supermercati
Maridan
190 m
Todis discount
380 m
Alta
430 m
Emme Più
550 m
Conad
870 m
Negozi Negozi
Diffusione Tessile
390 m
Negozi
450 m
VAMP
450 m
Alimentari
520 m
Minimarket
690 m
Bar Bar
Bar
390 m
Dea & Dea Bar
740 m
Ghisbi Bar
1,1 Km
Bar Centodolci
1,1 Km
Caffè Van Gogh
1,1 Km
Ristoranti Ristoranti
Lievito 72
70 m
Taverna al Bcco
180 m
Ristoranti
1,1 Km
Happy Hours
1,1 Km
Mattarello
1,1 Km
Mostra tutto

Caratteristiche

Rif.:
61184864
Piano:
2 di 5 con ascensore (Piano medio)
Balconi:
2
Camere da letto:
2
Arredamento:
Assente
Condizionamento:
Autonomo
Mostra tutto
Prezzo Prezzo
€ 289.000
Rata mutuo Rata mutuo
€ 1.362 / mese
Spese annue Spese annue
€ 600
Proponi il tuo prezzoProponi il tuo prezzo

Classe Energetica

E
E
E
E
E
E
E
E
E
EP globale non rinnovabile:
186.07 kW h/m² anno
EP globale rinnovabile:
8.00 kW h/m² anno
EP invernale del fabbricato:
EP estiva del fabbricato:
Anno di costruzione:
1967
Riscaldamento:
Centralizzato
Tipo impianto:
A radiatori
Tipo alimentazione:
Metano

Ti interessa visionare l'immobile?

Fissa un appuntamento  Fissa un appuntamento

Richiedi informazioni

Clicca su Leggi per aprire l'informativa
* Questi campi sono obbligatori

Calcola il tuo mutuo

Semplice e senza impegno
Anticipo

( % )
Mutuo

( % )

pochi semplici passi

inserisci i tuoi dati
Questionario completato
Grazie per aver richiesto un appuntamento senza impegno con un nostro Consulente del Credito e Assicurativo.

Hai inserito correttamente tutti i dati necessari e a breve riceverai una e-mail con un link da convalidare per inviare i tuoi dati.
Affiliato
Immobiliare Gemelli Torrevecchia Srl
Via Di Torrevecchia, 94/a 00167 Roma (RM)

Il nostro staff


  • Chiara Losani
    Collaboratrice

  • Marco Peruzzi
    Responsabile

  • Alessia Trinari
    Responsabile
Via Di Torrevecchia, 94/a 00167 Roma (RM)
Zona: Torrevecchia - Gemelli
Mostra su mappa
Orari: Lunedi - Venerdi 9.00-13.00 15.30-19.30 Sabato 9.00-13.30
Affiliato
Immobiliare Gemelli Torrevecchia Srl
Via Di Torrevecchia, 94/a 00167 Roma (RM)

2026 Tecnocasa Franchising S.p.A. - P. IVA 08365160152 - Via Monte Bianco 60/A 20089 Rozzano (MI). Ogni agenzia ha un proprio titolare ed è autonoma. Privacy policy | Policy utilizzo | Cookie policy