Trilocale in vendita

Roma, Via della Stazione di Ottavia - Ottavia
€ 259.000
3 locali 3 locali
90 Mq 90 Mq
2 bagni 2 bagni

Trilocale in vendita

Roma, Via della Stazione di Ottavia - Ottavia

Descrizione annuncio

OTTAVIA proponiamo in vendita un trilocale situato in una posizione strategica. L'appartamento si trova in via della Stazione di Ottavia, a breve distanza dalle stazioni FL3 Ipogeo degli Ottavi e Ottavia, garantendo un facile accesso ai mezzi di trasporto pubblico.

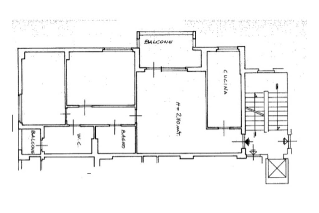
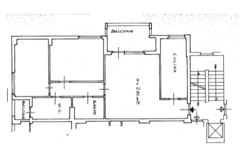
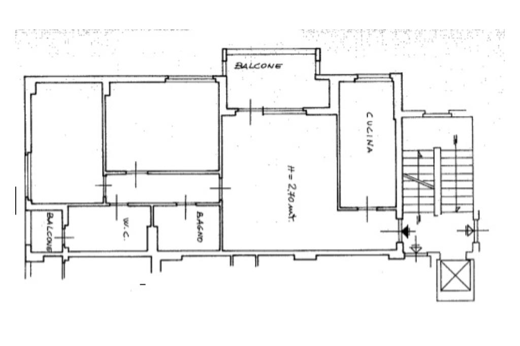
L'immobile è situato al piano secondo di un edificio civile e si presenta in buono stato. La disposizione interna ben distribuita comprende una cucina abitabile di 10mq, un soggiorno di 22mq, due camere,due bagni.

L'appartamento gode di un'ottima esposizione che assicura luminosità a tutti gli ambienti. E' presente un balcone di servizio e un terrazzo con una vista panoramica e una meravigliosa esposizione ad Ovest per godere di bellissimi tramonti .

Completano la proprietà un posto auto e una cantina, aggiungendo praticità e spazio extra per le esigenze quotidiane.

Questa soluzione abitativa rappresenta un'opportunità interessante per chi cerca un'abitazione confortevole e ben collegata nella capitale.

Se stai vendendo il tuo immobile o vorresti avere una valutazione completamente gratuita contattaci 06.51.27.696, mandaci una mail RM1 o passa a trovarci in VIA DI TORREVECCHIA 94/A

Ogni agenzia ha un proprio titolare ed è autonoma - Le presenti informazioni non costituiscono elemento contrattuale.

Mostra tutto

Nelle vicinanze

Trasporto pubblico Trasporto pubblico
Ipogeo degli Ottavi
Ipogeo degli Ottavi
690 m
Ottavia
Ottavia
900 m
Staz.ne Ottavia/Monterano
Staz.ne Ottavia/Monterano
90 m
Sperani
Sperani
110 m
Ricariche auto elettriche Ricariche auto elettriche
EnelX EVA+ ADS Selva Candida Esterna
1,6 Km
Scuole Scuole
Istituto Comprensivo Statale "La Giustiniana"
2,2 Km
Scuola media La Giustiniana
2,5 Km
Scuole
2,6 Km
Liceo Scientifico Statale "Louis Pasteur"
2,6 Km
Farmacia Farmacia
Farmacia La Giustiniana
2,4 Km
Farmacia Ianni
2,8 Km
Nocerino
3,0 Km
Silvestrini
3,0 Km
Ospedali Ospedali
Presidio Ospedaliero San Filippo Neri
2,2 Km
Supermercati Supermercati
Conad
790 m
Ipercarni
1,8 Km
Superstore Sma
1,9 Km
SMA
2,1 Km
TuoDì
2,2 Km
Negozi Negozi
Al 1333 Intimo E Non Solo
2,3 Km
Pane e Pizza Forno
2,4 Km
DICO
2,5 Km
Tigre
2,9 Km
Panificio Kumera
2,9 Km
Bar Bar
Bar Thouar
3,0 Km
Ristoranti Ristoranti
Ristoranti
1,3 Km
Golf
1,9 Km
La Rocca Già
1,9 Km
Cambio Rotta
2,0 Km
L'Oasi nel Parco
2,0 Km
Mostra tutto

Caratteristiche

Rif.:
61175767
Piano:
2 di 4 con ascensore (Piano medio)
Posti auto:
1
Balconi:
1
Terrazzi:
1
Camere da letto:
2
Mostra tutto
Prezzo Prezzo
€ 259.000
Rata mutuo Rata mutuo
€ 1.221 / mese
Spese annue Spese annue
€ 850
Proponi il tuo prezzoProponi il tuo prezzo

Classe Energetica

G
G
G
G
G
G
G
G
G
EP globale non rinnovabile:
175.00 kW h/m² anno
EP globale rinnovabile:
6.00 kW h/m² anno
EP invernale del fabbricato:
EP estiva del fabbricato:
Anno di costruzione:
1996
Riscaldamento:
Autonomo
Tipo impianto:
A radiatori
Tipo alimentazione:
Metano

Ti interessa visionare l'immobile?

Fissa un appuntamento  Fissa un appuntamento

Richiedi informazioni

Clicca su Leggi per aprire l'informativa
* Questi campi sono obbligatori

Calcola il tuo mutuo

Semplice e senza impegno
Anticipo

( % )
Mutuo

( % )

pochi semplici passi

inserisci i tuoi dati
Questionario completato
Grazie per aver richiesto un appuntamento senza impegno con un nostro Consulente del Credito e Assicurativo.

Hai inserito correttamente tutti i dati necessari e a breve riceverai una e-mail con un link da convalidare per inviare i tuoi dati.
Affiliato
Immobiliare Gemelli Torrevecchia Srl
Via Di Torrevecchia, 94/a 00167 Roma (RM)

Il nostro staff


  • Chiara Losani
    Collaboratrice

  • Marco Peruzzi
    Responsabile

  • Alessia Trinari
    Responsabile
Via Di Torrevecchia, 94/a 00167 Roma (RM)
Zona: Torrevecchia - Gemelli
Mostra su mappa
Orari: Lunedi - Venerdi 9.00-13.00 15.30-19.30 Sabato 9.00-13.30
Affiliato
Immobiliare Gemelli Torrevecchia Srl
Via Di Torrevecchia, 94/a 00167 Roma (RM)

2026 Tecnocasa Franchising S.p.A. - P. IVA 08365160152 - Via Monte Bianco 60/A 20089 Rozzano (MI). Ogni agenzia ha un proprio titolare ed è autonoma. Privacy policy | Policy utilizzo | Cookie policy