Monolocale in vendita

Roma, Via Augusto Tebaldi - Torrevecchia
€ 129.000
Prezzo aggiornato
1 locale 1 locale
32 Mq 32 Mq
1 bagno 1 bagno

Monolocale in vendita

Roma, Via Augusto Tebaldi - Torrevecchia

Descrizione annuncio

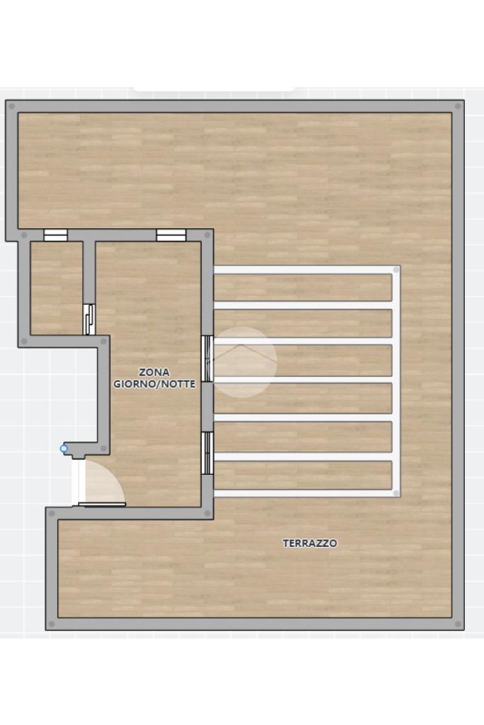
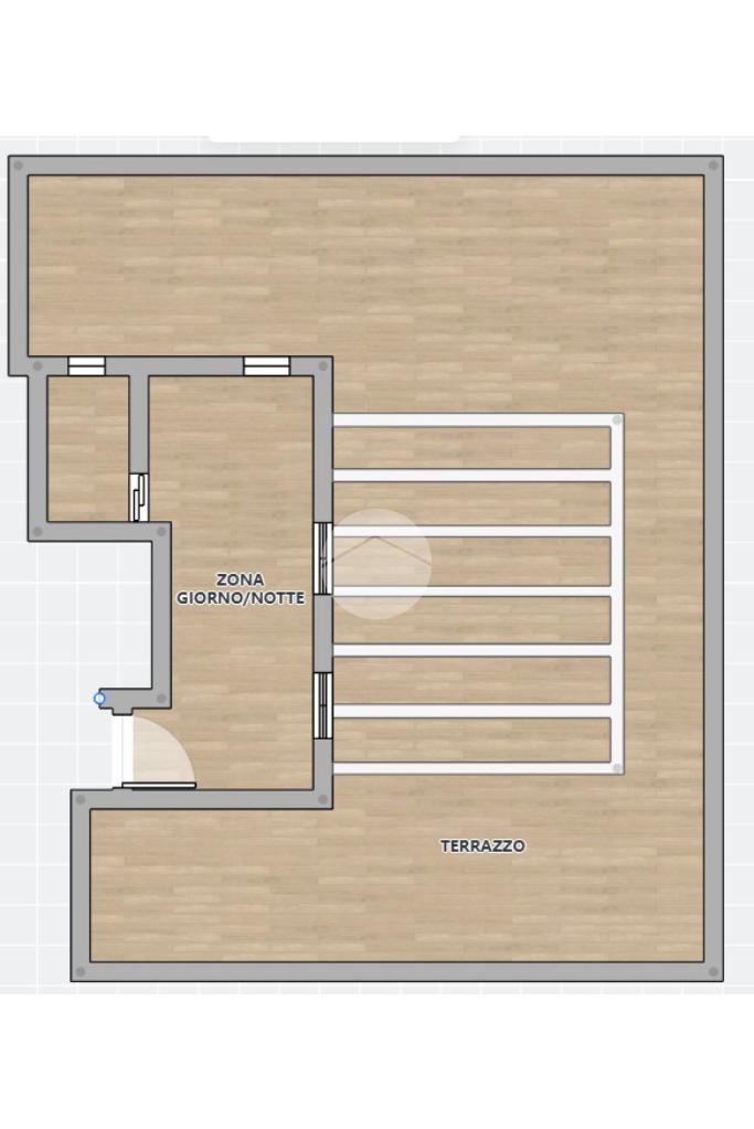
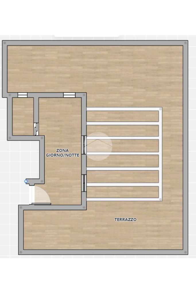
Super Attico di 20 mq circa con Vista Panoramica Scopri il tuo nuovo rifugio in questo appartamento , completamente ristrutturato con cura e attenzione ai dettagli. Situato in una zona tranquilla e bellissima, questo appartamento offre non solo comfort e stile, ma anche una posizione privilegiata.

La Terrazza da sogno con i suoi 90 mq di terrazza e un pergolato che permette di chiudere una parte di esso e renderlo vivibile anche nelle stagioni invernali, godendo di una vista panoramica mozzafiato e di un'esposizione ottimale, ideale per rilassarti e goderti il sole.

La terrazza è il luogo perfetto per trascorrere le serate estive con gli amici o per pranzare all'aperto durante le giornate sia estive che invernali. Gli interni sono stati completamente ristrutturati con un design moderno. Ogni dettaglio è stato curato per creare uno spazio accogliente e funzionale, perfetto per viverci. La posizione tranquilla e privilegiata di questo super attico è veramente unica, in una zona tranquilla e residenziale, lontana dal caos della città ma comunque facilmente raggiungibile a piedi tutti i beni di prima necessità e tutti i servizi necessari per una vita comoda e rilassata.

Se stai cercando una con una vista panoramica unica e una posizione privilegiata, questo è il posto che fa per te. Non perdere l'opportunità di vivere in questo angolo di paradiso, contattaci per visitarlo e scoprire tutte le sue caratteristiche!

Se stai vendendo il tuo immobile o vorresti avere una valutazione completamente gratuita contattaci 06.51.27.696, mandaci una mail RM1 o passa a trovarci in Via di Torrevecchia 94/A.

Ogni agenzia ha un proprio titolare ed è autonoma - Le presenti informazioni non costituiscono elemento contrattuale.

Mostra tutto

Nelle vicinanze

Trasporto pubblico Trasporto pubblico
Battistini
Battistini
2,4 Km
Gemelli
Gemelli
1,2 Km
stazione di Roma Monte Mario
stazione di Roma Monte Mario
1,4 Km
Torrevecchia/Provenzale
Torrevecchia/Provenzale
230 m
Provenzale/Torrevecchia
Provenzale/Torrevecchia
290 m
Ricariche auto elettriche Ricariche auto elettriche
Eneldrive Battistini
2,4 Km
Axpo - Stazio
2,7 Km
Rome Cavalieri, A Waldorf Astoria Resort
2,9 Km
Scuole Scuole
Scuole
510 m
Istituto d'Istruzione Superiore Cartesio
610 m
Istituto di Istruzione Secondaria Superiore Alberghiero Agrario Domizia Lucilla
710 m
Taggia
710 m
Liceo Ginnasio Statale Cornelio Tacito
730 m
Farmacia Farmacia
Farmacia Colapinto
610 m
Farmacia
720 m
Farmacia Andersen
980 m
Farmacia Pineta Sacchetti
1,1 Km
Parafarmacia doc*Torresina
1,1 Km
Ospedali Ospedali
Ospedali
250 m
Hospice Villa Speranza
1,2 Km
Pronto Soccorso Ospedale "Cristo Re"
1,3 Km
Ospedale Cristo Re
1,3 Km
Policlinico Universitario Agostino Gemelli
1,4 Km
Supermercati Supermercati
PIM
240 m
Alta
540 m
Pim
640 m
Tuodì
820 m
Carrefour Market
970 m
Negozi Negozi
Oviesse
240 m
CRAI
770 m
Mino jeans
1,0 Km
Micros
1,1 Km
L'idea
1,1 Km
Bar Bar
dello Studente
850 m
Giglio
980 m
Bar
1,0 Km
Caffè Van Gogh
1,1 Km
Lory
1,1 Km
Ristoranti Ristoranti
La Villetta
220 m
Happy Hours
680 m
Lo Scalino
890 m
L'Archetto
930 m
Taverna Sacchetti
1,1 Km
Mostra tutto

Caratteristiche

Rif.:
61071641
Piano:
4 di 4 con ascensore (Piano attico)
Terrazzi:
1
Camere da letto:
1
Arredamento:
Assente
Condizionamento:
Assente
Mostra tutto
Prezzo Prezzo
€ 129.000
Rata mutuo Rata mutuo
€ 591 / mese
Spese annue Spese annue
€ 480
Proponi il tuo prezzoProponi il tuo prezzo

Classe Energetica

F
F
F
F
F
F
F
F
F
EP globale non rinnovabile:
288.30 kW h/m² anno
EP globale rinnovabile:
13.29 kW h/m² anno
EP invernale del fabbricato:
EP estiva del fabbricato:
Anno di costruzione:
1960
Riscaldamento:
Autonomo
Tipo impianto:
A radiatori
Tipo alimentazione:
Altro

Prezzo ridotto di €1 (8%%)

Ti interessa visionare l'immobile?

Fissa un appuntamento  Fissa un appuntamento

Richiedi informazioni

* Questi campi sono obbligatori

Calcola il tuo mutuo

Semplice e senza impegno
Anticipo

( % )
Mutuo

( % )

pochi semplici passi

inserisci i tuoi dati
Questionario completato
Grazie per aver richiesto un appuntamento senza impegno con un nostro Consulente del Credito e Assicurativo.

Hai inserito correttamente tutti i dati necessari e a breve riceverai una e-mail con un link da convalidare per inviare i tuoi dati.
Affiliato
Immobiliare Gemelli Torrevecchia Srl
Via Di Torrevecchia, 94/a 00167 Roma (RM)

Il nostro staff


  • Narcisa Bucur
    Collaboratrice

  • Chiara Losani
    Collaboratrice

  • Marco Peruzzi
    Responsabile

  • Alessia Trinari
    Responsabile
Via Di Torrevecchia, 94/a 00167 Roma (RM)
Zona: Torrevecchia - Gemelli
Mostra su mappa
Orari: Lunedi - Venerdi 9.00-13.00 15.30-19.30 Sabato 9.00-13.30
Affiliato
Immobiliare Gemelli Torrevecchia Srl
Via Di Torrevecchia, 94/a 00167 Roma (RM)

2025 Tecnocasa Franchising S.p.A. - P. IVA 08365160152 - Via Monte Bianco 60/A 20089 Rozzano (MI). Ogni agenzia ha un proprio titolare ed è autonoma. Privacy policy | Policy utilizzo | Cookie policy